EZ EZViwe

판교에 공원같은 학교 만들어진다

토공, 학교·공원 통합설계방식 도입키로

김훈기 기자 기자  2006.11.25 15:17:01

기사프린트

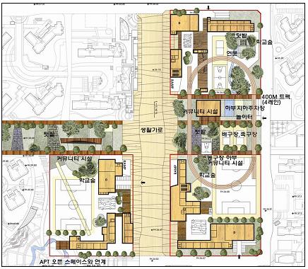
[프라임경제]한국토지공사가 학교와 공원이 한데 어우러진 통합공간 조성을 위한 시범사업을 추진한다고26일 밝혔다. 대상지는 판교신도시로 4개 학교가 첫 적용된다.

단지 조성단계부터 학교와 공원을 하나로 설계해 기능적, 생태적 열린설계를 통해 일체화된 방식으로 조성하겠다는 것이다.

일반적으로 도시를 조성하는 경우 학교는 세대수를 기본단위로 통학거리를 중심으로 배치하기 때문에 공원과 연계되지 못했다. 또 비싼 용지비 부담으로 최소규모를 적용하다 보니 학생들의 활동공간에 대한 배려는 소홀했던 것이 사실.

공원과 연계된 학교도 교육청과 지자체 등이 소유 주체별로 따로 설계해 도시 미관이 나빠지고 토지이용 효율성이 떨어지는 문제가 있었다.

   
이러한 문제점을 개선하기 위해 최근에 조성하는 신도시는 계획단계부터 교육환경과 통학안전 등에 대한 배려는 물론 학교를 지역주민의 문화활동 교류 공간으로 변화시키려는 시도가 이뤄지고 있다.
 
토공은 이를 지원하기 위해 학교와 공원을 기능적으로 통합하는 새로운 방식의 학교·공원 열린설계 시범사업을 판교신도시에 처음으로 적용하기로 했다.

시범사업은 공원과 연접한 초·중·고 4곳을 대상으로 하며, 생태연못과 텃밭, 인조잔디가 깔린 운동장·트랙, 학교 숲, 공원시설과 연계한 운동시설 등이 조성된다. 현재 시행방안을 수립해 해당 교육청과 협의 중에 있으며, 앞으로 교육계·환경단체(NGO) 등의 자문을 거쳐 시행할 예정이다.

공원과 학교내 조경 등 통합설계는 토공등 판교신도시 사업시행자가 주관하고, 조성은 학교에서 추진하되 사업시행자가 일정비용을 지원할 예정이다.

토공 관계자는 “학교·공원 열린설계 시범사업은 주민과 학생들의 호응 속에 판교신도시의 교육 및 생활환경 수준을 한층 더 끌어올리는 계기가 될 것”이라고 밝혔다.